Architecture / Delhi Jal Board, Delhi

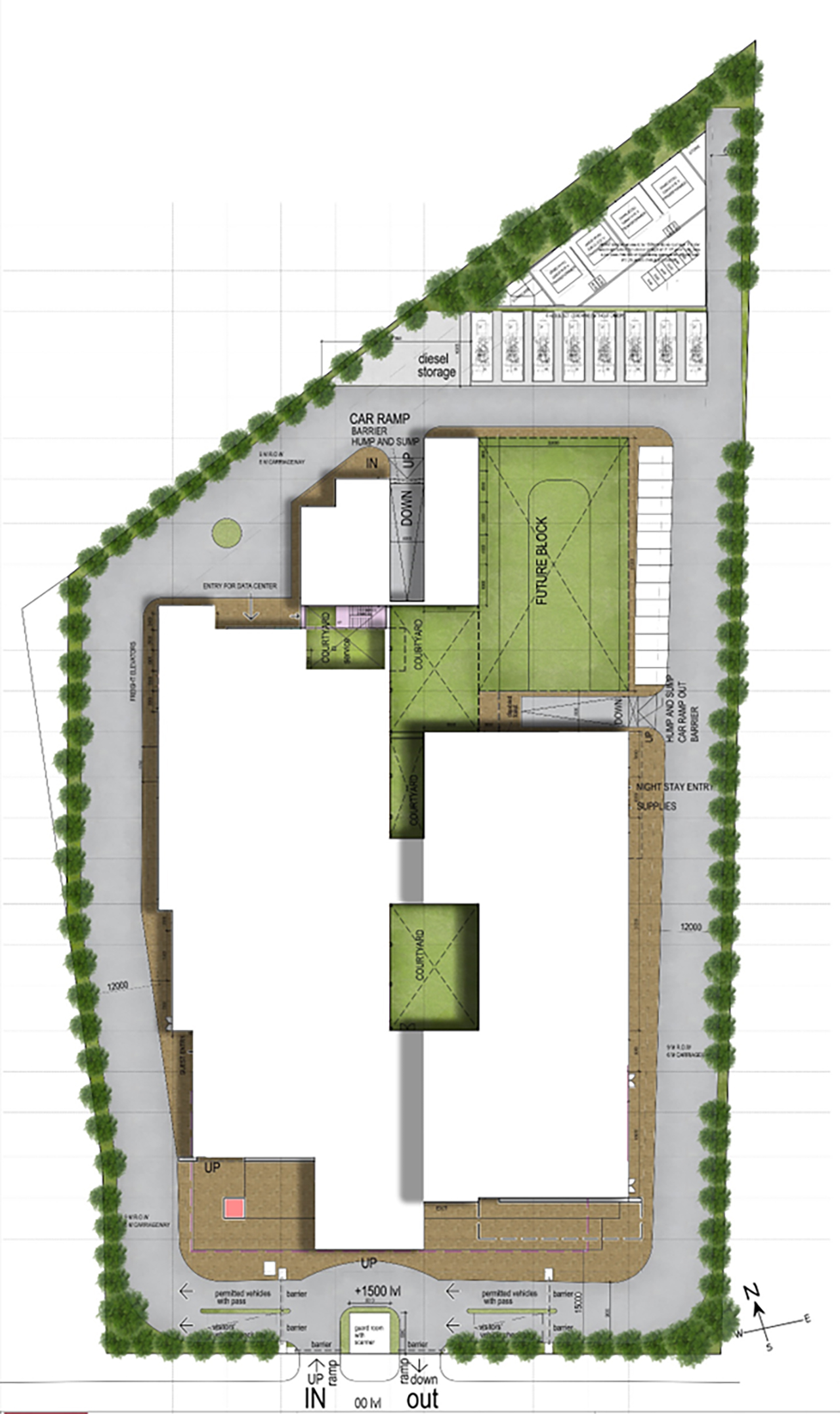
Punjab National Bank Data Centre

Gurugram

Client: PNB / CPWD
Architectural Services: Concept Architects
Location: Gurugram
Area: 45,000 sq.m.
Value: 300 Cr
Status: National Competition Won- Project Awarded

Top